Zühlsdorf:
Dem Trubel Berlins endlich entfliehen
Objekt-Nr.: ML2025-122

EINZIEHEN statt Ausbauen

Ansicht Garten

Ansicht Eingang

Ansicht Wohn-, Koch-, Essbereich

Ansicht Wohnzimmer und Essbereich

Ansicht Wohnzimmer

Ansicht Küche

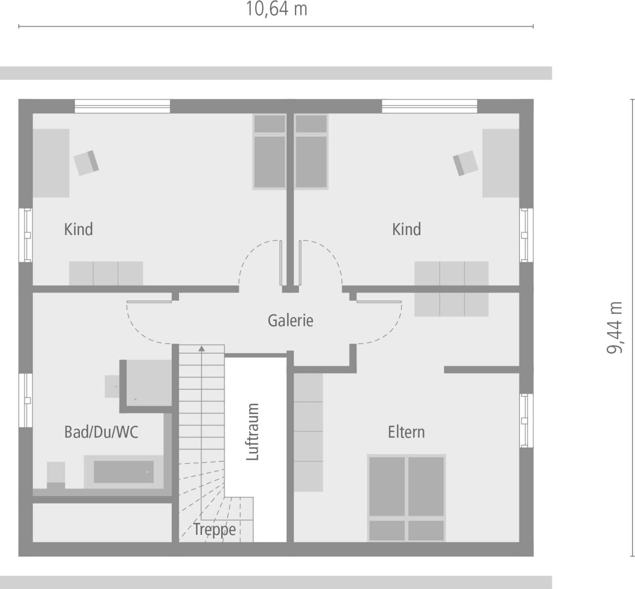
Grundriss Erdgeschoss








Preis:
665.000 €
Wohnfläche ca.:
125 m²
Grundstück ca.:
990 m²
Zimmeranzahl:
3
Ein Zuhause, das auf Anhieb begeistert: Dieser moderne Bungalow verbindet zeitloses Design mit einer Wohnatmosphäre, die Geborgenheit und Leichtigkeit ausstrahlt. Auf ca. 125 m² entfaltet sich eine klare Architektur, die Raum schafft für Lebensfreude und Wohlbefinden.
Das Herzstück bildet der offene Wohn-, Ess- und Kochbereich – hell, großzügig und perfekt für gemeinsame Stunden mit Familie und Freunden. Hier verschmelzen Alltag und Genuss, während große Fenster den Blick ins Grüne öffnen und das Haus mit Licht durchfluten.
Das Schlafzimmer ist ein Rückzugsort zum Entspannen, ergänzt durch ein weiteres flexibles Zimmer, das sich ganz nach Wunsch verwandelt: ob Arbeitsbereich, Gästezimmer oder kreativer Freiraum. Ein modernes Bad lädt zum Verweilen ein, während der praktische Hauswirtschaftsraum das Wohnen noch komfortabler macht.
So entsteht ein Bungalow, der mehr ist als nur Wohnfläche: ein Ort zum Ankommen, Wohlfühlen und Bleiben – beständig im Charakter, offen für neue Lebensphasen, und geschaffen, um ein echtes Zuhause zu sein.
Haustyp: Bungalow
Etagenanzahl: 1
Zustand: Haus in Planung (projektiert)
Die von uns gemachten Informationen beruhen auf Angaben des Verkäufers bzw. der Verkäuferin. Für die Richtigkeit und Vollständigkeit der Angaben kann keine Gewähr bzw. Haftung übernommen werden. Ein Zwischenverkauf und Irrtümer sind vorbehalten.
Wir weisen auf unsere Allgemeinen Geschäftsbedingungen hin. Durch weitere Inanspruchnahme unserer Leistungen erklären Sie die Kenntnis und Ihr Einverständnis.
Das könnte Ihnen auch gefallen

OKAL Haus Ost
Herr Michael Laggies
An den Hainbuchen14542 Werder (Havel)
Mobil: +49 171 7554454
Impressum
























