Rhinow:
Wenn Luft plötzlich Heimat wird
Objekt-Nr.: AC2025_10_19-3

Ansicht Garten



Grundriss Erdgeschoss

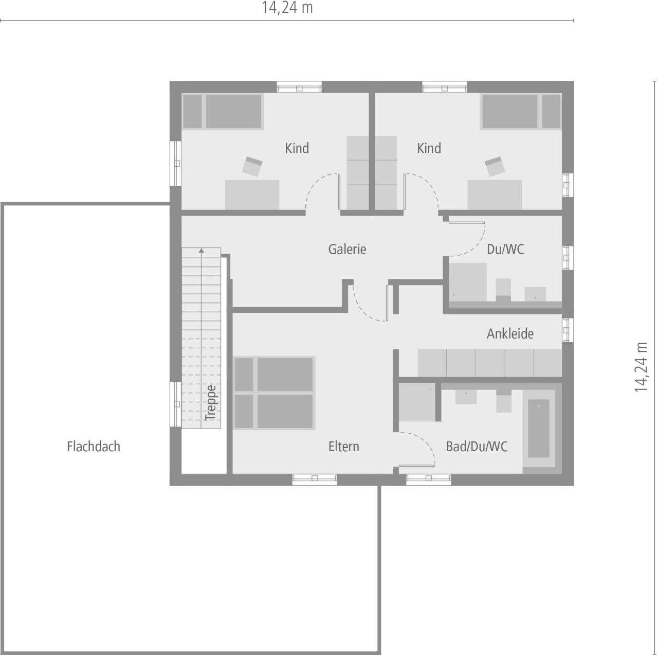
Grundriss Obergeschoss







Preis:
514.358 €
Wohnfläche ca.:
147,18 m²
Grundstück ca.:
1.038 m²
Zimmeranzahl:
8
Wohngesund durch kontrollierte Frischluft und schadstoffarme Materialien – nachweislich geprüft.
Geborgenheit, Ruhe, Vertrauen: Das Black Label 12 schenkt Ihrer Familie einen wohlig-vertrauten Rückzugsort – mit moderner Architektur und dem markanten, überdachten Balkon als Blickfang. Darf Ihr Zuhause geprüfte Qualität ausstrahlen und Sicherheit fühlbar machen? Geprüft – das schenkt Ruhe. Spüren Sie, wie Nähe entsteht und Heimat wächst?
147,18 m² Nettogrundfläche – Raum, der atmen lässt. EG: Kochen, Zusammensein, Ankommen.…
Die Diele öffnet sich direkt in den offenen Wohn-Ess-Kochbereich; dazu Hauswirtschaftsraum, Abstellraum, Gäste-WC – alles nah, nachvollziehbar, planbar. OG: Elternruhe, Kinderlachen, Ordnung. Das Reich der Eltern mit Ankleide und zwei große Kinderzimmer; von zwei Zimmern Zugang zum Balkon. Die wohngesunde Bauweise setzt Standards: schadstoffarme Materialien, Holz ohne chemischen Holzschutz und kontrollierte Frischluft-Wärmtechnik (Standard) mit CO₂-/Feuchteregelung – PV-ready, leise, effizient, gut für Generationen. QDF/DGNB – geprüfte Qualität für heute und morgen. Ist das die verlässliche Basis, die Sie sich wünschen?
Ein Herbstabend in Rhinow: goldenes Licht auf der Fassade, Kinder sausen barfuß über die Terrasse, Freunde kommen dazu – Gemeinschaft entsteht wie von selbst. Innen bleibt es warm und ruhig, der Alltag wirkt bewährt und konstant. Festpreisgarantie – Ihr Budget bleibt klar. DFH-Gruppenstärke gibt partnerschaftlichen Rückhalt. Dokumentierte Abläufe halten den Einzug im Blick, Bauzeit 12–15 Monate – planbar, verlässlich. Bodengutachten inklusive – sicher starten. Möchten Sie sehen, wie sich das anfühlt? Genau so könnte Ihr Alltag bald aussehen – neugierig geworden?
Möchten Sie sehen, wie sich das anfühlt? Schreiben Sie uns direkt hier im Portal.
Oder lieber direkt? Telefon 0152 21778970 · WhatsApp 0152 21778970 · E-Mail andre.christen@okal.de
Wenn Sie noch vergleichen möchten, merken Sie sich diese Anzeige – dann haben Sie alle Details später in Ruhe griffbereit.
Haustyp: Einfamilienhaus
Etagenanzahl: 2
Anzahl Schlafzimmer: 3
Anzahl Badezimmer: 1
Terrasse: 1
Keller: nein
Die von uns gemachten Informationen beruhen auf Angaben des Verkäufers bzw. der Verkäuferin. Für die Richtigkeit und Vollständigkeit der Angaben kann keine Gewähr bzw. Haftung übernommen werden. Ein Zwischenverkauf und Irrtümer sind vorbehalten. Hinweis: Diese Anzeige wurde mit Unterstützung künstlicher Intelligenz erstellt.
Wir weisen auf unsere Allgemeinen Geschäftsbedingungen hin. Durch weitere Inanspruchnahme unserer Leistungen erklären Sie die Kenntnis und Ihr Einverständnis.
Das könnte Ihnen auch gefallen
WOHNEN MIT MEDITERANEM FLAIR

OKAL Haus Ost
Herr André Christen
An den Hainbuchen14542 Werder (Havel)
Mobil: +49 152 21778970
Impressum
14728 Rhinow
Havelland
Brandenburg
































